Property
Beds
None
Full Baths
None
1/2 Baths
None
Year Built
2026
Sq.Footage
42,904
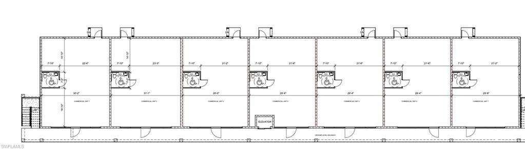
Prime development opportunity in South Cape Coral! This entitled land parcel is offered with approved plans for a mixed-use project featuring 39 workforce housing apartments and 8300 sq ft of commercial space. The site is zoned CP (confirm with zoning for intended use), offering an ideal live-work scenario for residents. Situated in a rapidly growing area, the property provides excellent access to public transportation, major roadways, schools, parks, dining options, and healthcare facilities. High rental demand and flexible use make this a standout investment opportunity, offering stable income potential through long-term residential and commercial leases. The property is deed-restricted under Florida’s Live Local Bill, requiring 40% of units to be leased to individuals earning no more than 120% of the Area Median Income (AMI), which is $88,800 as of April 2024. Whether you're a developer or investor seeking to contribute to Cape Coral’s workforce housing solutions while capturing long-term value, this property is ready for action. Buyers have options: 1) Acquire the entitled lot (3.5M) and building plans to build under their own contractor and financing. 2) Use Curran Young and the current construction estimate we have. $250/sf = 18.5M 3) Join us, if you are an accredited investor, through our fund. Pre-construction pricing is subject to change. Specifications, features, and availability may be modified prior to contract. Property is currently undeveloped and not subject to any lease or rental agreements. Buyer is responsible for securing any future tenants or rental arrangements.
Features & Amenities
Interior
-
Total Bedrooms
N/A
-
Bathrooms
N/A
-
Cooling YN
NO
-
Cooling
None
-
Fireplace YN
NO
-
Heating YN
NO
-
Heating
None
-
Pet friendly
N/A
Exterior
-
Garage
No
-
Pool
No
-
Waterfront YN
NO
Area & Lot
-
Lot Size(acres)
0.688
-
Property Type
Commercial Sale
Price
-
Sales Price
$10,000,000
-
Tax Amount
$4,869
-
Sq. Footage
42, 904
-
Price/SqFt
$233
HOA
-
Association
No
School District
-
Elementary School
N/A
-
Middle School
N/A
-
High School
N/A
Property Features
-
Stories
3
-
Senior Community YN
NO
Schedule a Showing
Showing scheduled successfully.
Mortgage calculator
Estimate your monthly mortgage payment, including the principal and interest, property taxes, and HOA. Adjust the values to generate a more accurate rate.
Your payment
Principal and Interest:
$
Property taxes:
$
HOA fees:
$
Total loan payment:
$
Total interest amount:
$
Location
County
Lee
Elementary School
Middle School
High School
Listing Courtesy of Kyle Doyon , Coast Life Properties LLC
RealHub Information is provided exclusively for consumers' personal, non-commercial use, and it may not be used for any purpose other than to identify prospective properties consumers may be interested in purchasing. All information deemed reliable but not guaranteed and should be independently verified. All properties are subject to prior sale, change or withdrawal. RealHub website owner shall not be responsible for any typographical errors, misinformation, misprints and shall be held totally harmless.
Agent | Realtor®
Julia McCabe
Call Julia today to schedule a private showing.
* Listings on this website come from the FMLS IDX Compilation and may be held by brokerage firms other than the owner of this website. The listing brokerage is identified in any listing details. Information is deemed reliable but is not guaranteed. If you believe any FMLS listing contains material that infringes your copyrighted work please click here to review our DMCA policy and learn how to submit a takedown request.© 2024 FMLS.